Corrigendum zur NIN 2025

Seit 1. Januar 2025 gilt die NIN 2025 (SN 411000:2025). Wie bei allen grossen Normen können kleine Unstimmigkeiten auftreten – dafür gibt es das Corrigendum. Die Unterschiede: Amendment: Normative Änderungen, offiziell gültig ab Frühjahr 2026, Corrigendum: Inhaltlich relevante Korrekturen ohne normative Änderung und Stillschweigende Korrekturen: z. B. Rechtschreibung oder Satzzeichen, diese werden nicht extra ausgewiesen

Corrigendum NIN
Quelle: Electrosuisse

Rund ein Jahr nach Inkrafttreten der NIN 2025 erscheint das Corrigendum als PDF zum Download auf der Electrosuisse-Website und unter «Support-Dokumente» auf NIN Online. Die Seitenzahlen entsprechen jenen der Druckversion, wobei immer die Vorder- und die Rückseite eines Blattes zum doppelseitigen Druck geliefert werden. Da sich die Korrekturen auf viele verschiedene Druckseiten verteilen, ist die Anzahl der Seiten entsprechend gross. Es handelt sich um 46 einzelne Seiten bzw. 23 doppelseitige Blätter. 

Die inhaltliche Relevanz und das Ausmass der Veränderung bilden die Grundlage für den Prozess zur Erarbeitung und Veröffentlichung. In den drei Varianten wird unterschieden zwischen stillschweigenden Korrekturen, Corrigendum 11-2025 und Amendment zur NIN 2025. 

Dreiteilung
Quelle: Electrosuisse

Rund 80 % der festgestellten Mängel sind ohne inhaltliche Relevanz wie z. B. Rechtschreibe- und Formatierungsfehler, Fehler in der Zeichensetzung oder im Satzbau. Wenn eine Korrektur keinen Einfluss auf die Bedeutung des Normentextes hat, werden die notwendigen Anpassungen von Electrosuisse fortlaufend auf NIN Online eingepflegt. Im Begleitschreiben zum NIN Corrigendum werden diese Korrekturen als «Stillschweigende Korrekturen» bezeichnet. Für sie werden keine spezifischen Druckseiten erstellt.

Das Corrigendum 11-2025 selbst umfasst 25 Korrekturen, die den normativen Inhalt der NIN nicht verändern. Es handelt sich z. B. um Artikelnummern von Verweisen und Normen, Anpassungen in den Beispielen und Erläuterungen (B+E), Anpassungen in den Anmerkungen sowie Vervollständigungen und Korrekturen von Legenden.

17 Korrekturen behandeln Normenverweise, Legenden und Formatierungen. Die restlichen acht punkte werden hier kurz erläutert. 

5.1.1.1, B+E: Es wurde präzisiert, wer die Einteilung von Bauten und Anlagen in feuergefährdete Räume und Bereiche vornimmt. Es ist dies der Eigentümer/Betreiber in Zusammenarbeit mit der zuständigen Behörde. Die Formulierung «ob ein Raum brennbaren Staub in gefährlichen Mengen enthält» entfällt, da diese Aussage in der vorangehenden Formulierung bereits enthalten ist. Dieser Abschnitt wurde mit der analogen Aussage im Kapitel 4.2.2.1 synchronisiert. 

5.2.1, Tabelle 6: Der Titel wurde angepasst. Statt ortsfest verlegte Leiter veranschaulicht diese Tabelle den Aufbau und die Anwendung von ortsveränderlichen Leitern aus Litzen.

7.10.5.1.2.3: Sprachliche Präzisierung: Der Mindestabstand von elektrischen Betriebsmitteln zum Gasauslass wird vom Mittelpunkt des Gasauslasses bis zum Anfang des Betriebsmittelrands gemessen.

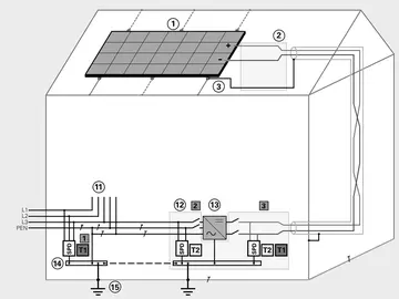
7.12.4, Figur 9, Variante xC B+E: Bei der dargestellten Variante ist ein SPD Typ 1 auf dem Dach nicht notwendig. Beim Gebäudeeintritt ist ein SPD Typ 1+2 oder ein Kombiableiter notwendig.

SPD
Angepasste Variante ohne SPD auf dem Dach.
Quelle: Electrosuisse

7.12.5.2.3.6 B+E: Ergänzung einer Aufzählung mit möglichen Gründen für eine getrennte Verlegung von AC- und DC-Leitungen sowie von mittels SPD geschützten und ungeschützten Leitungen. Vermerk auf das Swissolar-Merkblatt Photovoltaik Nr. 19 «Getrennte Leitungsverlegung», wo weitere Informationen und Beispiele zur getrennten Leitungsverlegung zu finden sind. Auf ein weiteres Swissolar-Merkblatt wird in 7.12.5.2.6.101 verwiesen, nämlich auf die Nummer 18 «Arbeitssicherheit DC Photovoltaik». Beide Merkblätter sind in der NIN Online direkt verlinkt.

7.12.5.4.2.101: Für den Potenzialausgleich von Montagesystemen wurde der Aufzählungspunkt betreffend «Kurze Schienen von Montagesystemen» durch zwei neue Punkte ersetzt, wonach Montageschienen oder Montagepunkte, die PV-Module nicht oder nur einseitig überragen und elektrisch nur über die PV-Module miteinander verbunden sind, nicht geerdet werden müssen. Weiter sind leitend verbundene Montageschienen, z. B. auf Metalldächern, zu erden.

Korrekturen, welche normative Bestimmungen betreffen, werden nicht im Corrigendum abgehandelt, sondern unterliegen einem separaten Prozess. Hierfür wird ein Amendment verfasst, welches als Anhang zur NIN 2025 erscheinen wird. Die laufende Vernehmlassung betrifft die folgenden Punkte:

2.2.1.68: Unter «Werkzeuge», entfällt der Zusatz «wenn es sich um einen Schraubverschluss handelt (z.B. Gehäusedeckel einer Anschlusssicherung»

4.1.1.3.1.2: Präzisierung eines Begriffs: Metallische Teile werden nicht durch einen Schutzleiter verbunden, sondern durch einen Schutz-Potenzialausgleichsleiter. 

5.2.4.2: Beim zweiten Aufzählungsstrich von Absatz 1 wird die Angabe >16 mm2 durch ≤ 16 mm2 ersetzt. 

7.12.5.2.1: Ein Abschnitt in Absatz 101 wird entfernt, nämlich die Aufzählung der zu verwendenden Kabel- und Leitertypen. Die vorangehende Bestimmung, wonach Kabel auf der DC-Seite so auszuwählen und zu verlegen sind, dass die Gefahr von Erd- und Kurzschlüssen möglichst gering ist, reicht als Bestimmung aus.

Die Unterteilung in die drei Formate stillschweigende Korrekturen, Corrigendum und Amendment ermöglicht eine praktische und übersichtliche Optimierung der NIN 2025, die sämtliche Prozesse zur Normierung berücksichtigt. Damit wird die NIN 2025 in ihrer Funktion als transparente und verlässliche Grundlage für die Planung, Ausführung und Kontrolle von elektrischen Installationen und Anlagen gestärkt.